Welcome Home to 81 Carlisle Street

Ethelton

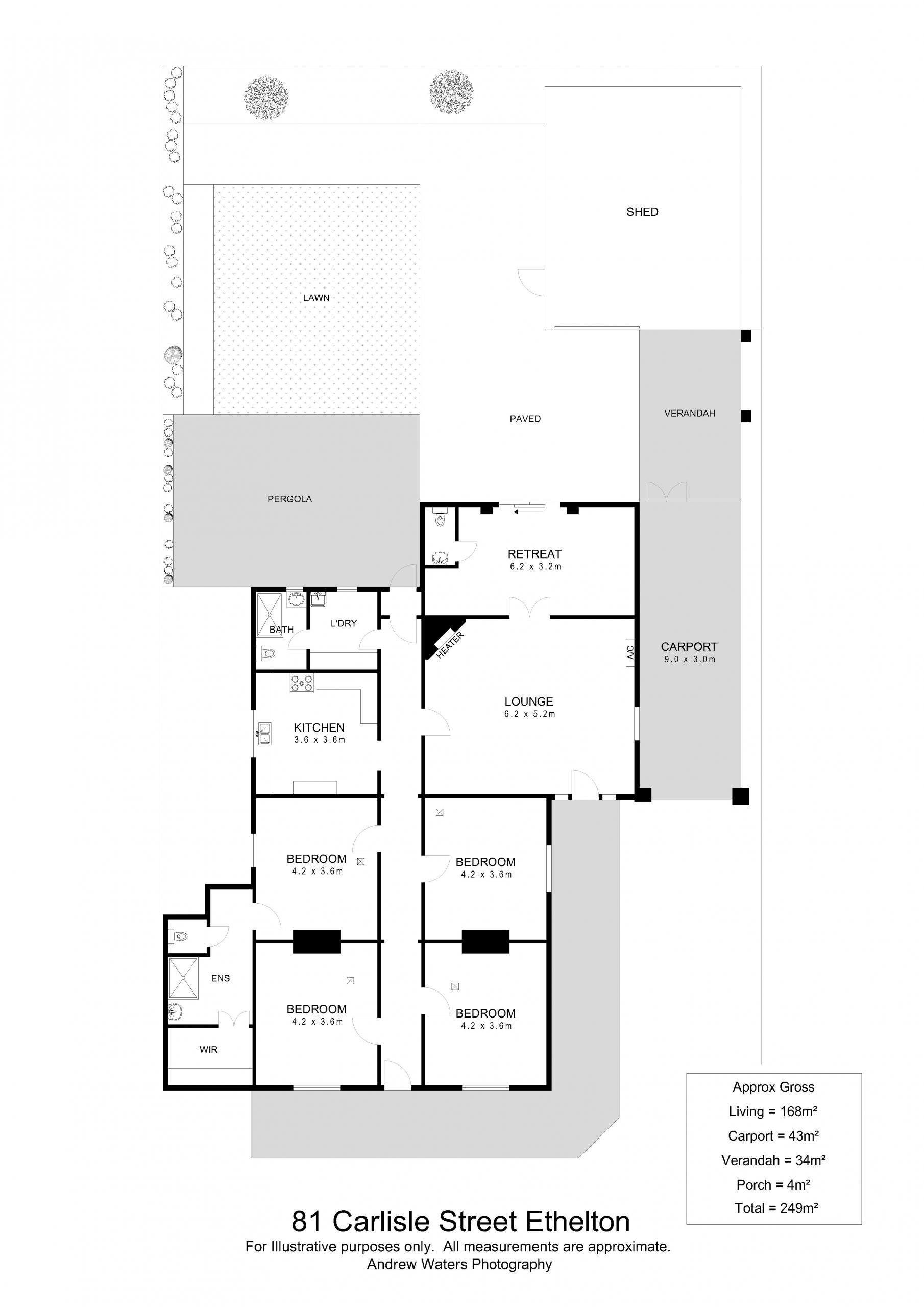
Exuding grace and charm of a bygone era, this impressive 1900s built return verandah villa in the popular beachside location of Ethelton, is set on 668 sqm (approx) Two allotments...

4 Bed, 2 Bath

Property Size

Land Size: 668 m²

House

CHARACTER ON CARLISLE

For more information on this outstanding opportunity

Contact Petar Losic on 0416 016 134 or Jeremy Marrollo on 0435 882 333 today to arrange an inspection.